2,000-sf workhorse plan continues to ring the bell
This little plan has really been a high producer. It is simple to build, lean, and has great curb appeal. As a result this plan has sold very well for several builders.
It reminds me of the quote, “The whole is greater than the sum of its parts.” The bits and pieces of this seemingly simple plan work in concert with its exterior to culminate into a great seller. It kind of makes it the BLT of home plans.
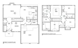
Let’s take a closer look:
A. Large Great Room is open and in direct line of site to Kitchen. This creates a fantastic entertainment space.
B. Flex Room up front can act as a Den/Study the increasingly rare formal Dining Space.
C. Generous Master Bath adds a touch of elegance to a simple plan.
D. In concert with Lean Design concepts the hallways are minimized to reduce or eliminate wasted space.
E. Owner’s Suite is located on the rear of the home to maximize views and privacy.

