Re-imagining existing plans can pay off huge
What do you do if a previous best-selling plan hits the skids? Dump it, pitch it, give it the old heave-ho? Possibly, but many builders are using another strategy. All throughout the country builders are taking a fresh look at their existing plans and re-imagining their existing Turnberrys and Devonshires as a vehicle to greatly increase sales and profits.
Below is an example of a reimagined plan – let’s take a closer look:
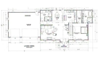
Existing Plan
A. The long hall from garage is an area of wasted space. That is just deadly. Buyers get it, and are looking to maximize usable space and minimize hallways.
B. Awwwwkward! The floor break at the kitchen/dining that is.
C. Island is too far away from work triangle to be effective.
D. At only 5’ wide, closet becomes very long and narrow making an uncomfortable space.
E. Family entrance does not take advantage of trending elements like cubbies or a drop zone.
F. Living room is disconnected from kitchen; this is completely opposite of what the market demands.
G. Living room is shallow and does not take advantage of rear view.
H. Foyer is undefined with the closet “floating” in space. Also the view from the front door is directly into kitchen.
I. Door to owner’s suite is directly off foyer giving arriving guests a bit more view than they bargained for.
J. Owner’s suite faces the street, which is less private and typically not the best view.
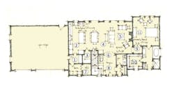
New Plan
1. Family entrance now has the ability for a built in bench/cubby area and acts as a drop zone.
2. Kitchen with workable island has a strong connection to dining and great room, which visually enlarges the space and is perfect for entertaining.
3. Kitchen now has a large walk in “Costco Pantry,” which is very popular now that many kitchen items are bought in bulk.
4. A well-positioned dining area allows for a clean floor break.
5. Great room no longer feels tight and is afforded a view to the rear of the home.
6. Arches add interest and drama to the home.
7. Putting utilities and laundry on the front saves room on the rear for other view-seeking rooms.
8. Well-defined foyer makes for a beautiful entrance to the home and no longer offers a view to the owner’s suite.
9. Due to a vestibule, the entrance to owner’s suite is now much more private.
10. Closet now has much better proportions and feels larger.
11. Owner’s suite is now positioned to the rear of the home, allowing for view-seeking and maximum privacy.
Not all plans can make a comeback; neither is life like a sitcom where all problems can be solved in thirty minutes. But don’t be so hasty to kick the old plan to the curb; with some careful thought and creativity you might be able to make it a winner again.


