New digs for the not-quite retired
For baby boomers, retirement is nothing like it was for their parents. Affluent boomers who have built successful businesses don't want to spend their golden years taking cruises or playing golf. They?re reinventing themselves, whether that means starting a second career or pursuing a long-cherished dream. They want their new homes to reflect where they've been, what they've accomplished and what they wish to leave behind. Some will downsize, but others will significantly upsize.
A legacy for future generations
Mision lago, an estate spread out over an 8-acre, lakefront site, is a cross between California and New Mexico Spanish Mission styles, according to architect John Thatch. Thatch convinced the clients that the exterior should be white to reflect true Santa Barbara style.
When Gary Brown first met the clients, they told him they didn't necessarily want to hire a local builder. The couple was in their early 60s and building a new home on a lake about 20 miles east of Tampa, Fla. They had lived on Malibu Beach and were particularly attracted to the Santa Barbara/California Mission style.
Luckily Brown, the president of Sterling Bay Homes, Tampa, has degrees in architecture and construction engineering from California Polytechnic State University in San Luis Obispo. He and John Thatch, a partner with Dahlin Group Architecture Planning, Pleasanton, Calif., met at Cal Poly in 1972 and have been friends ever since. "I guess I have California tendencies in my construction details," says Brown.
He introduced the clients to Thatch, who flew them out to Southern California. "Over the span of 48 hours, we probably toured a dozen model homes," Brown says.
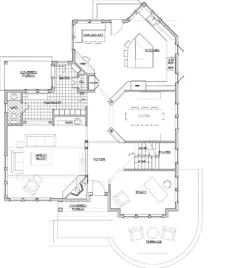
At the end of the trip, the clients hired Brown and Thatch to design and build their estate, Mision lago, colloquial Spanish for Lake Mission. It comprises 26,000 square feet of conditioned living space plus courtyards, garages and outdoor areas.
The lower level has a movie theater, a recreation room, a wet bar, two bedrooms, a play area and a safe room. These areas lead to an outdoor kitchen and living room, adjacent to the pool.
Brown spent a year designing and permitting a home for the couple, and was ready to start construction when they decided to move the project to a different site at the same lake. This particular site has a 40-foot slope down to the water, which is unusual for Florida. "We could dig into the hill without any concerns about water-table problems, and design a walkout basement," he says.
The lower-level movie theater resembles the Tampa Theater, a 1926 historic landmark. While contractors were digging the footings for the basement, the clients asked Brown to replicate the theater's domed ceiling, which would entail dropping the theater floor 9-1/2 feet below the basement level. "We had to [make] some pretty significant vertical cuts to get the theater floor in without causing any safety issues," he says.
The lower-level movie theater is a replica of the historic Tampa Theater, a Florida Mediterranean-style building. The domed ceiling is painted to resemble the night sky.
Thatch created an approach to Mision lago that hides the home from the street. "The road meanders in a couple of different directions," he says. Once past the gatehouse, visitors receive glimpses of the house and water, eventually arriving at an auto court. Another set of gates opens to an entry courtyard: a 40-by-40-foot area with a fountain. Flanking it are two 20-by-20 courtyards; one has a private lawn for the couple?s dogs and the other has a lily pond.
Like a real California mission, Mision lago is organized around a series of courtyards and verandas. Most of the living areas are on the main floor.
The home wraps around the courtyards with art galleries on the north and south sides. The great room, kitchen, and breakfast nook are in the center of the plan, overlooking the swimming pool and lake, while the master bedroom wing angles to the left. A spiral staircase leads from this bedroom to the husband's private retreat. The wife has her own retreat near the master bedroom, with a door leading to the private lawn.
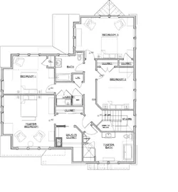
In addition to two lower-level bedrooms, there is 1,200 square feet of guest space on the main floor, and the home is elevator-equipped. "The guest suites could work for their teenage grandchildren as well as their grown children," Thatch says. "There's also the caretaker's unit up above, which could be a great incubator space for a relative."
A guardhouse marks the entry to Mision lago. Visitors drive through the gates and along a meandering driveway that offers glimpses of the home and lake. The entrance to the home is via a series of courtyards.
Brown hired an assistant to help manage Mision lago, and subcontracted 100 percent of the work. "I think the client appreciated that one of us was on site every day," he says. "I didn't just hire some construction superintendent and throw him out there."
The home has many outstanding finishes and details, including a variety of ceiling treatments (see below).
As Brown and Thatch point out, Mision lago is much more than a home for a couple seeking a quiet retirement. It?s a legacy for future generations to enjoy. "Hopefully, 150 years from now people will be trying to preserve it," Brown says. "It's a once-in-a-lifetime type of home."
Phasing keeps huge project on track
Mision lago, a 26,000-square-foot estate near Tampa, Fla., took three years to complete and is the largest residential project Gary Brown has built to date. The site slopes 40 feet down to a lake. To ensure that the project stayed on schedule, the president of Tampa-based Sterling Bay Homes broke it down into two phases. Phase one included the auto court, the garages and a U-shaped portion of the home that includes the guest suites and caretaker's quarters.
The covered porch at the entry to the home has tongue-and-groove cypress ceilings and exposed beams. The concrete masonry columns are clad with a reddish-brown, pre-cast product. Decorative Spanish tile adorns the front door.
"That [phase] sat at the top of the hill and was one level, slab on grade and fairly simple to build," says Brown. "We did that first and had the shell up when we started phase two, the part that literally went down the hill."
The two-phase approach allowed Brown to work through the finishes with architect John Thatch of the Dahlin Group, Pleasanton, Calif., and interior designers Ralph Mills and Matthew Long of Artisan Design, Tampa, Fla. "We knew when we started building phase two that those details were already thought out and we wouldn't have any hiccups," Brown says.
The kitchen features decorative tile work, pale-blue countertops and a painted tray ceiling. An auxiliary kitchen on the other side of the cooktop wall works well as a catering kitchen for parties.
For example, every room has a different ceiling treatment. In the covered porch off the kitchen as well as the master sitting room, the ceilings have vigas and latillas. Vigas are round beams, while latillas are pine saplings, 3 inches in diameter, that bridge the beams. Ceilings of this type are often found in traditional pueblo architecture, but were totally new to Brown.
"We decided that the vigas and latillas would be cosmetic, not structural," he says. "But John didn't want just a flat ceiling in those areas; he wanted it domed." To achieve the desired effect, the latillas were split in half, steamed and bent into shape in the field, then glued and nailed to the structural part of the ceiling.
[PAGEBREAK]
Old neighborhood embraces the new
By building a detached garage in the rear, the architect and builder were able to carve out space for a patio. The siding is natural cedar, with a rainscreen behind the shingles that wicks out moisture. Photos: Peter Vanderwarker
Residents of the Boston suburb of Newton, Mass., are typically conservative and resistant to change. The townspeople, not to mention the Newton Historical Commission, tend to be suspicious of anyone who wants to tear down an old house and build something new. So John Willett is amazed at the warm reception for a home he built for an empty-nester couple in their late 50s.
Willett, of Altair Associates, Waban, Mass., built the 3,000-square-footer from a design by Michael Collins of D. Michael Collins Architects, Natick, Mass. The clients were moving down from a much larger home that dated back to the 1890s. "They considered building on a lot adjacent to the [old house] as well as renovating or adding onto that house," Collins says. Then a lot across the street from a lake went up for sale.
Kochman, Reidt + Haigh provided custom cabinets, built-ins, and millwork for all of the living areas. The living room?s walnut wet bar matches the bookshelves in the study. The flooring is a combination of reclaimed heart pine and cork.
The existing home on the site, a ranch house with a front-loaded, tuck-under garage, was demolished. Collins retained and expanded the old foundation and turned the garage into a basement. ?We filled in and waterproofed the front retaining wall and backfilled it to make the yard level,? he says.
The lot is 80 by 150 feet, which was tight for a new-construction project. Willett built right up to the setback on the right-hand side, and poured a new driveway leading to the detached, two-car garage at the rear.
A main-floor master wasn?t feasible due to the footprint of the home.
The home has clear sightlines from the back door through the main living areas and out to views of the lake. "The kitchen is secluded at the rear of the house, but it's completely open to the other rooms," Collins says. "It doesn't feel compartmented or small. Yet each room has its own identity."
The master is on the second floor along with three additional bedrooms and a full bath for visiting children and grandchildren.
A study at the front of the house doubles as the husband?s office. The wife?s office is a functional part of the kitchen, integrated with Arts & Crafts style cabinets by Kochman, Reidt + Haigh Cabinetmakers of Stoughton, Mass.
The wife?s office is integrated with the kitchen and utilizes the same cabinet design. Water-based, low-VOC paints and finishes were used throughout the house.
Willett credits Collins and the homeowners for coming up with a design that is thoroughly appealing. "I can't tell you how many compliments I've received about the house," he says. "The historical commission actually nominated it for best new construction in the city, and it was chosen for the Newton Annual House Tour last spring, which usually features old houses that have been renovated."
Cabinetry by Kochman, Reidt + Haigh gives an Arts & Crafts flavor to the kitchen, which has an angled wall facing the rear patio.
About the Author
Sign up for our eNewsletters
Get the latest news and updates













